
預售屋客變,是購屋流程中少數能在不動結構的前提下,提前調整生活條件的關鍵階段。
一旦錯過,多數問題只能在交屋後以更高成本補救。
依照我們過往經驗,分享幾項常見避坑流程,以及在客變階段最值得優先處理的關鍵項目,協助你在有限時間內做出理性且可判斷的決策。
什麼是預售屋客變?調整生活條件的時機

客變是指在預售屋結構完成、尚未交屋前,由屋主依需求向建商申請調整格局、水電配置或建材項目。這段期間是預售屋唯一能在不拆除、不破壞結構的情況下進行調整的黃金改裝期,一旦交屋後,所有變更都將轉為裝修工程處理,並且達到責任。


為什麼客變是購屋流程中最關鍵的階段?

客變是指在預售屋結構完成前,依需求申請調整格局、水電或建材項目 。
- 省錢效率高:避免交屋後二次施工產生的打除與清運費用 。
- 入住更快速:隱蔽工程一次到位,縮短交屋後的裝修工期 。
- 降低風險:減少因二次施工導致牆面龜裂或漏水的隱患
建商不會主動說的客變限制

客變不是無限制調整,而是在既有結構與施工流程內的「有限變更」。
多數建商會提供可變更清單,卻不會主動說明哪些屬於不可逆條件,或變更後的責任邊界。在正式進入細節規劃前,有幾項限制必須先釐清。
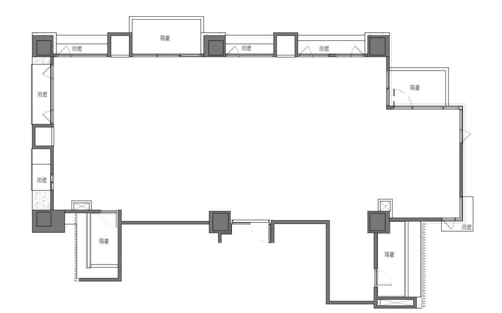
客變限制 1:結構與管線的變更邊界
承重牆、外牆與主幹排水管線,多半無法移動。
特別是廚房與衛浴位置,通常受限於整棟建築的共用立管系統,
若未事先確認可變範圍,設計構想可能在送件時就被駁回。
設計師在客變階段的重要工作之一,就是在既有結構與建商規範下,調整格局與設備配置,找到合理的設計解法。
客變限制 2:退料不退工的成本邏輯
許多屋主認為退掉標配,交屋後自行施工更彈性。
但實務上常見情況是材料可退、施工費不退,交屋後重新施作,
等於承擔完整施工成本與時間延誤。
交屋後重新施作,不僅需要重新整合水電與施工工序,也可能增加工程時間與整體成本。
因此在客變階段就確認設備與建材規劃,往往能避免後續重複施工。
客變限制 3:保固責任的轉移風險
一旦變更原始水電或退掉標配設備,相關區域的防水與漏水責任,可能不再由建商承擔。
這類條件通常寫在合約附註,而非重點說明。提前釐清保固範圍,比事後協調來得重要。
真實案例:建商制度下的客變協調
在過去的客變專案中,我們曾遇過一個審核較為嚴格的建案。
雖然所有客變內容都依照建商規範提出,但在送件審查時仍出現額外條件,例如:
- 糞管不得走明管
- 小便斗設置不可影響到樓下層的廚房
- 排水管線不可任意調整立管位置
這些限制不一定會在最初的客變說明中完整提及,但在實際審核階段卻可能成為關鍵條件。
在這個案例中,我們需要重新調整管線配置,並與建商工程單位多次溝通協調,說明設計邏輯與施工可行性,最終才達成雙方共識。
這類情況其實非常考驗設計師對結構條件、給排水系統與建商制度的理解。
若在客變初期就能將格局配置、排水路徑與設備位置考量完整,往往能減少後續來回修正的時間成本。
對屋主而言,客變階段最重要的不是改動多少,而是在有限期限內做出成熟且可行的配置。
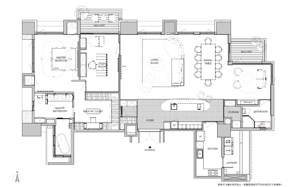
找室內設計客變必做的 6 大項目:沒做一定後悔!

若你對圖面不熟悉、無法判斷插座、燈位與家具配置是否合理,
設計師的專業,能協助把平面圖轉換為實際生活情境,避免入住後才發現不合用。

客變細節 1:地坪高度需提前規劃
地坪高度屬於不可逆工程。不同地材厚度差異大,若未預留空間,交屋後更換材質容易產生門檻落差與門片干涉。
客變階段確認最終地坪材質,並同步調整標高,才能確保整體水平一致。
這是空間完成度的基礎。
客變細節 2:隔音工程越早介入越精準
排水管與樓板隔音多屬結構相關工程。
若未在施工階段處理,後期補強效果有限且成本高,排水立管包覆、樓板隔音層增加、牆體聲學處理,都應在客變階段納入考量。聲音問題,永遠是住進去後才會感受到的細節。
客變細節 3:弱電配置的重要性
現代住宅幾乎都涉及智慧系統,網路佈線、監控、影音整合與中控設備,
都需要完整的弱電規劃。
若未預留集中設備空間與足夠線路,後續擴充將影響牆面完整與整體美感。客變階段完成基礎佈線,科技才能真正隱形。
客變細節 4:客變燈光配置規劃
建商燈位通常僅提供基本照明,
若希望空間具備層次與情境感,必須在客變階段預留分區燈控與線路。
燈光不是裝飾,而是空間結構的一部分。線路未預留,設計便會受限。
客變細節 5:衛浴裝潢規劃
每個人於浴室的使用需求不同,光是浴室大小、是否需要浴缸、浴缸的方向與馬桶配置等;小至浴室磁磚花色,到出水孔、排水孔,到免治馬桶需事先預留的電壓線路等,許多看似瑣碎的選擇,都需要細細斟酌。即便是馬桶改變方向,都會影響管線位置更動。
甚至影響上下樓層的垂直管線位置,都需要向建商溝通了解可變動的的程度與範圍。
客變細節 6:客變圖面留存在交屋驗屋時比對
客變圖面在送件前,通常需要由屋主簽署確認。
這代表所有格局、水電與設備位置已經確定,並將依此作為施工依據。
因此在簽署前,建議再次確認格局配置、插座與燈位位置,以及各項設備與管線安排。多數建商在送件後便不再接受修改。
此外,客變完成後也應完整保存所有相關資料,包括客變圖面、建商核准版本與加減帳文件。
這些文件在交屋驗屋時,可用來比對施工內容是否符合客變設計,也能作為後續室內裝修的重要依據。
客變會影響未來轉售價值嗎?

客變若規劃得當,可以提升居住品質;若改動過於個人化,也可能降低市場接受度。
關鍵一:格局方正,決定市場接受度
市場對於動線清晰、比例方正的格局接受度始終較高。
若因個人需求過度拆改,形成畸零空間或動線混亂,未來轉售時,
潛在買方可能需重新計算整修成本。
關鍵二: 隱蔽工程影響屋況與長期價值
排水隔音、電力容量與空調配置,不一定直接提高售價,卻能降低日後糾紛與屋況疑慮。
對高價住宅而言,「穩定性」本身就是價值。
選擇專業穩定的設計團隊,讓客變一次到位

交屋後才開始裝修,意味著拆除、重做與時間成本。
對住宅而言,二次施工本身就是風險。
在客變階段完成地坪、電力與隱蔽工程整合,才能讓工程一次到位,避免反覆修正。
客變只有一次窗口期。在送件前,先確認格局與系統配置的可行性。
【1 對 1 專人諮詢】 👉 預約專屬評估時段
【延伸閱讀】2026 室內設計推薦指南:8 大方法讓你找出喜歡風格
【延伸閱讀】室內設計風格全賞析|2026 最新趨勢與個人化空間介紹
預售屋客變的常見問題 FAQ

Q1:客變一定要找設計師嗎?
不一定。若不改隔間僅微調插座,自己處理即可;若涉及水電移位或格局大改,找設計師能避免交屋後的昂貴違約金。
Q2:客變加減帳是什麼?
這是建商針對變更項目增減的明細。加項(多加插座)需付費,減項(少一片牆)會退費,務必逐項核對。
Q3:廁所跟廚房的位置可以大改嗎?
不行。受限於社區共用管線(管線間),馬桶與廚房排水位置通常無法跨區移動。
Q4:預售屋多久前要找設計師?
建議在客變前即介入。設計師越早了解結構與建商規範,越能在客變階段一次完成地坪、隔音與電力配置,避免交屋後二次施工。
Q5:預售屋都可以客變嗎?
不一定,需視建商規範與結構條件而定。承重牆、外牆與主幹管線多半無法變更,應由設計團隊先行評估可調整範圍。
台北、台中市室內設計推薦:尚藝室內設計

工匠,講究分毫不差的精準;藝術家,追求更高層次的美感突破。而室內設計,則是在理性與感性之間,將品味與生活具象化。
俞總監憑藉多年設計經驗,始終專注於空間本質的掌握。
「不在於做了多少設計,而在於是否真正鋪陳出適合長期居住的生活感受」
透過比例、動線與材質層次的整合,讓空間自然回應使用者的節奏,而非流於形式。
LINE 一對一諮詢